Siirry sivun sisältöön
Haku ja valikko
Haku
Hae
Tervakosken Eläkkeensaajat ry
Etusivu
Uutiset
Yhdistyksemme
Yhteystiedot
Tapahtumat
Kerhot
YHTEISTYÖSSÄ
Matkat ja kulttuuri
Hyödyllisiä linkkejä
EKL
Liity jäseneksi
EKL:n tiedotteita
Hallituksen sivut
Jäsensivut
Kuvagalleria
Kaikuja
N:o 25.1972
Haku
Hae
Etusivu
Uutiset
Puheenjohtajan palsta
Jäsenkirje 2025
Hattujuhla
Menovinkkejä ja harrastuksia senioreille
Tassubussin aikataulu
Hämeen piirin tapahtumakalenteri 2026
Janakkalan seurakunta
Yhdistyksemme
Yhteystiedot
Pankkiyhteystiedot
Matkalaskukaavake
Ohjeet jäsensivulle kirjautuminen
Tapahtumat
Kerhot
KEVÄT 2026
Rollaattoriralli
Petanki
Mölkky
Boggia
Ideapaja
Käsityö- ja porinakerho
Savipaja
Kuntosali
Vesijumppa
Muistikerho
Peliluola
Pelimannit
Tanssikerho
Kuntojumppa senioreille
Tuolijumppa
Boccia+muut pelit
Sulkapallo
Venyttely/kehonhuolto
Menovinkkejä ja harrastuksia senioreille
FRISBEEGOLF
Kehärumpuryhmä
YHTEISTYÖSSÄ
Tervakosken Konekeskus
Tervakosken apteekki
OP Janakkala
Autokorjaamo V.Myllymäki
Kukkatalo ja hautaus Petri Kouhia Oy
RKS-Huolto Oy
Tilaa kortit Aililta!
Rengon Pitopalvelu
Tervakosken kukkakauppa
Matkat ja kulttuuri
Joukon matkassa
Eläköön elämä risteily
Hattujuhla
Kesäretki Savon sydämmeen 9-10.6
Ryttylän ES kutsu Repovedelle matkalle
Musikaali Katri-Helenan elämästä
Laulavat sadepisarat
Hyödyllisiä linkkejä
EKL
Liity jäseneksi
EKL:n tiedotteita
EKL-koulutus
Elinvoimaa
EKL-yleiset tiedotteet
Verkosta virtaa
Hämeen piiri
Hallituksen sivut
Jäsensivut
Kuvagalleria
Vuoden 2026 kuvia
Hämeen piirikokous
Tammikuun jäsentapaaminen
Suomi.fi WEB
Saako olla sardiini
Kolmen piirin koulutustilaisuus Kiipulassa
Talvitapahtuma
Vuoden 2025 kuvia
Puurojuhla
Oppia ikä kaikki
Jumppakerho liikuttaa monia
Hyvä lähiympäristö kampanja
Uusi aluevaltaus kerhotoiminnassa
Frisbee-joukkue Anjalassa
Suruton päivä
Vieraita Rollisralliin
Retki Viikinsaareen
Pyöräretki Hyvikkälään
Kesäretki Viroon
Yhdistys 55 vuotta
Vappumarkkinat torilla
Kevään viimeiset tanssit
Hämeen piirin keilamestaruus tulokset
Siru Sirpukasta
Maaliskuun jäsentapaaminen
Sulkapallokurssi
R:mäen boggia-kerhon vierailu
Talvitapahtuma
TES/M60+KERHO
Vuoden 2024 kuvia
Joululounas
Syyskokous 21.11
Jäsentapaaminen to. 12.9
Ruskatempaus
Frisbee kilpailut Vihti
Rollisralli!
Lauluilta Suruttomassa.
Piirin kesäpäivä puuhamaassa
Sokkomatkan terveisiä
Tervafest terveiset!
Retki keväiseen Porvooseen
Hattujuhla
Vapputori
Kuukausitapaaminen 11.4
Talvitapahtuma
M60+ Kerho
Eläkkeen saajien päivä 18.2
IN MEMORIAM
Vuoden 2023 kuvia
Joulukahvit
Joululounas
Marraskuun kuukausitapaaminen
Viihdesoittajien konsertti/Erkki Liikanen
Vanhaa Tervakoskea
Kesäistä rollarallia
Suruton lauluilta 17.8
Umpimähkäretki 2.8
Pyöräretki valajärven laavulle
Frisbeegolfmestarit
Hattujuhla
Nestorit video
Vapputori
Piirin boggiamestarit 2023
Talvitapahtuma
Hämeenlinnan boggiakerhon vierailu
Kuukausitapaaminen 9.2
Vuoden 2022 kuvia
Frisbeegolf
M60+ kerho
Tutustuminen tietokonemuseoon
Maamoottorin esittely Vähikkälässä
Tangokonsertti
Vapputori
Hattujuhla
Nokipannukaffet Rehakassa
Lauluilta suruttomassa
Puhallustikka roll-rallissa
EKL:n Hämeen piirin Kesäolympialaiset
Olimme mukana Tervassa tapahtuu 13.8
Olimme mukana Delfort-areenalla 3.9
NESTORIT tapahtuma
Nestorit video
Kuukausitapaaminen 13.10
Kuukausitapaaminen 10.11.22
Puurojuhla
Vuoden 2021 kuvia
Pikkujoulu
Lehtileikkeet
Vuoden 2020 kuvia
Syyskokous
Rollaattoriralli
Suruton päivä
2020 lehtileikkeet
Kaikuja kotokulmalta 3.9.2020
Ahot "Kotokulmassa" 12.11.2020
Vuoden 2019 kuvia
Pikkujoulu
Tammenterho
Verkosta virtaa
Suruton Vanhustenpäivä
Janakkala Seura 70V.
Lopen retki
Hattujuhla
Lahden retki
Ulkoilupäivä
Talvitapahtuma
Tanssinpäivä Hämeenlinna
H.piirin pilkkikisat
2019 lehtileikkeet
Vuoden 2018 kuvia
Kunnan kunniamaininta
Pikkujoulu
Pikkujoululounas
Vanhustenjuhla
Harjakaiset
Tattoo
Lopen retki
Poukapirtti
Kesäretki
13.6. keskiviikko
14.6. torstai
15.6. perjantai
16.6. lauantai
17.6. sunnuntai
Olli Koskisen kamerasta
Leijakisa 7.6.2018
Hattujuhla
Helsingi retki
Eduskuntatalo
Luonnontieteellinen museo
Ruokailu
Temppeliaukion kirkko
Hallituksen koulutuspäivä
Tallinnan laulajien vierailu
Tanssinpäivä
Suruton päivä
Talvitapahtuma
2018 lehtileikkeet
Vuoden 2017 kuvia
Pauninmaa
Pikkujoulu
Itsenäisyyspäivä
Nuorilta vanhoille
Yhteislaulu
Pikkujoululounas
Mansen retki 10.8.17
Poukapirtti päivä
Korileijan kuvasarja kotiradalta
Ryttylän korileijakisat
Tuusulan Rantatie
Lottamuseo
Halosenniemi
Maneesi
Ainola
Ilmatorjuntamuseo
JAK 150v tulppaanit
Kevätristeily
Hattujuhla
Vapputori
Kirje sieltä jostain
Tanssinpäivä
Suruton ulkoilupäivä
Heureka
Talvitapahtuma
2017 lehtileikkeet
Vuoden 2016 kuvia
Myyjäiset
Pikkujoulu
Vanhusten päivä 4.10.16
Eläkkeelle!-ilta
Janakkala 150v.
Päiväretki Lohjalle
Lauluilta
Kesäretki
Päiväretki Lopelle
Hattutanssit
Vapputori
Yhteislaulu
Manselaiset kylässä
Suruton ulkoilupäivä
Talvitapahtuma
2016 lehtileikkeet
Vuoden 2015 kuvia
Pikkujoulu 12.12.2015
Puolipäiväretki 1.10.2015
Kotka 27.8.2015
Lauluilta Suruttomassa
Viro Rakvere 27.7.2015
28.7.2015
29.7.2015
Tangomarkkinat 13.6.15
Turun saaristo
Tervantori 25.5.15
Yyteri
SPR:n kiitos
Hattujuhla 7.5.15
26.3.15 iltamat
TES 45 vuotta,Tervakoski-näytelmä
Talvitapahtuma
2015 lehtileikkeitä
Peliluola
Vuoden 2014 kuvia
Pikkujoulu
Rollaattoriralli
Kesäretki
5. Sokkoretki
Gardajärvellä Italiassa
11. ja 12.5
13.5
14.5
15.5
16.5
17.5
18.5
19.5
20. - 22.5
Hattutanssit
Surutonpäivä
1.Seuran talkoot
Helmikuun tapaaminen
Elokuvat 6.2.2014
Talvitapahtuma 30.1.2014
2014 lehtileikkeet
Vuoden 2013 kuvia
Pikkujoulu
Joulun avaus
4. sokkoretki
Tervassa tapahtuu
Tervakosken Uimahalli 40 v.
Hietalahti 8.8.13
Rollaattoriralli
Kisakeskus Pohja
Kesäretki
Tiistai 2.7.13
Keskiviikko 3.7.13
Torstai 4.7.13
Perjantai 5.7.13
3. sokkoretki
Eskarilaisten kukitus
Hattujuhla
Hämeen Piirin Kirkkopäivä.
Kirkkopäivä
Pikkukirkon historia
Suruton päivä
2013 Hallitus
Talvitapahtuma
Vuoden 2013 lehtleikkeitä
Vuoden 2012 kuvia
Pikkujoulu 8.12.2012
Lasten Itsenäisyyspäivä
2012.10.09 Yhdessä vahvempia
2. Sokkoretki
2012 kesä
Vauhtia Varalasta
Rollaattoriralli
Hietalahti
1.Sokkoretki
Kesäretki Saarijärvelle
Muovailukurssi
Hattujuhla
2012.04.17.ensiapukurssi
2012.04.17.boccia kisa
2012.03.14.Kolmikisa
2012.03.08 kevätkokous
Surutonpäivä
Talvitapahtuma.
Vuoden 2012 lehtileikkeitä
Vuoden 2011 kuvia
Vuoden 2010 kuvia
Vuoden 2009 kuvia
Vuoden 2008 kuvia
Selkäkivut
Vanhoja kuvia
Lehtileikkeitä ennen 2012
EKL 50 vuotta / harjoitukset
/ juhlat
Hämeen Piirin mölkkykisat
Tulokset
Kisan aineistoa
Palautteet
Kaikuja
TES 50v. historiikki
TES 40v. historiikki
Entistä Tervakoskea
Leo Kieksiltä
Pirkolta saatuja kuvia
Ollilta saatuja kuvia
Aulilta ja Eerolta saatuja kuvia
Sirkalta & Soinilta
Lisää Sirkalta 2018
Enniltä saatuja kuvia
Kaukolta
Pertti Ahon albumista
Markku Anttilalta
Tervakoski tänään.
Tervakoski 2012 nähtynä teiltä ja turuilta.
Kartta
Tervakoskentie
Vähikkäläntie
Seura - Vähikkäläntie
Marttila
Sokslammintie
Niemeläntie
Marttilantie
Torpparintie
Otontie
Hataskyläntie
Tonttulantie
Kalliokuja
Korpilo
Korpilontie
Purolantie
Pajunoja
Itärinne
Mäkitie
Pajutie
Katajatie
Tietty
Vuorelantie
Markunpolku
Harjutie
Aholanpolku
Erätie
Kuusitie
Notkopolku
Tietyntie
Silvantie
Koivistonpolku
Moosentie
Martintie
Martinpolku
Raitakuja
Vesitorni
Haapakuja
Tuomikuja
Petäjäkuja
Honkakuja
Mäntykuja
Kelokuja
Tervaskuja
Pihlajakuja
Koivukuja
Huisti
Huistintie
Opontie
Linnuntie
Ampumarata
Kartano
Serlachiuksentie
Pariisintie
Waseniuksentie
Kartanontie
Fjalarintie
Vourintie
Nestontie
Matuntie
TOY:n paperitehdas
Kylä
Tervajoentie
Paperintekijäntie
Porttilantie
Paperintekijänkuja
Seuranaukio
Vesantie
Kissanhännäntie
Pikkuniityntie
Nikkarintie
Rämsäläntie
Lepolantie
Kettukalliontie
Kuoppamäentie
Mäyräntie
Asevelitie
Pikkumäentie
Piilontie
Paukkutie
Kettukalliontie
Keskusta
Kirkkotie
Tervalantie
Rajapirtintie
Kivimiehentie
Tammiranta
Tammirannan Puistotie
Pallokenttä
Kassari
Suruton
Uimaranta
Huoleton
Alasjärventie
Tammenranta
Savilahdentie
Savilahdenpiha
Mutkaton
Puistomäki
Luulionpolku
Paimensavu
Paimenkivenpiha
Luulionkaari
Tammenterho
Tammenoksa
Patala
Heimolantie
Patalantie
Peltotie
Usvatie
Rinnetie
Pohjantie
Eskolantie
Eskolanmutka
Touhulantie
Maunontie
Päivöläntie
Metsola
Koivusillantie
Varisojantie
Teeritie
Urkupilli
Pajupilli
Kaartotie
Metsokuja
Teerikaari
Lehtikuusenmäki
Oksapolku
Lehtikuja
Tonterintie
Paisto
Paistontie
Kydöntie
Piilonsuontie
Rintalantie
Suotie
Kotakiventie
Koukkaharjunmutka
Punkantie
Leimuntie
Terhontie
Mattilan metsätie
Helsingintie
Harjunmäki
Uhkoilantie
Tarpistenkuja
Pollenpolku
Tuomistonmäki
Teutorintie
Kernaalan rantatie
Muurarinpolku
Tukkirannantie
Melkkola
Melkkolantie
Niittymäentie
Hallakorpi
Ryttyläntie
Karamäentie
Koivulantie
Toukolankaarre
Omettamäki
Rauhala
Rauhalantie
Mattilan metsätie
Huunantie
Koivukaarto
Huunankaarto
Kenttävahdintie
Rauhalanraitti
Huunankehä
Mikkolanmutka
Mikkolantie
Lautamäentie
Kaiunpolku
Marjumäentie
Ahonlaita
Eväsoja
Eväsojantie
Eväsojanlenkki
Eväsojanlenkki 2012 jälkeen
X Tervakoskilaisilta
Kuvia Raija Sinisillalta
Piippu eläkkeelle!
18.10.2017 tehty tarkennus
TOY:n (vuosi) Kaikuja
N:o 1.1948
N:o 2.1949
N:o 3.1950
N:o 4.1951
N:o 5.1952
N:o 6.1953
N:o 7.1954
N:o 8.1955
N:o 9.1956
N:o10.1957
N:o 11.1958
N:o 12.1959
N:o 13.1960
N:o 14.1961
N:o 15.1962
N:o 16.1963
N:O 17.1964
N:o 18.1965
N:o 19.1966
N:o 20.1967
N:o 21.1968
N:o 22.1969
N:o 23.1970
N:o 24.1971
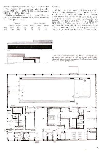
N:o 25.1972
N:o 26.1973
N:o 27.1974
N:o 28.1975
N:o 29.1976
N:o 30.1977
N:o 31.1978
N:o 32.1979
Viikkokaikuja
1943
1946
1947
1948
1955
1956
Tervakosken viikkokaikuja
1971
1970
1969
1968
1667
1966
1965
1964
1963
1962
1961
1960
1959
1958
1957
1956
1955
1954
1953
1952
1951
1950
1949
1948
1947
1946
1945
1944
1943
1942
1941
1940
1939
1938
1937
1936
1935
1934
1933
1932
1931
1930
1929
1928
1927
1926
1925
1924
1923
Tervakoski Oy:n historiaa
PAPERITEHTAAN HISTORIA 1950
Tampereen museoiden arkistosta
Vanhan SEURAN avajaiset Hämeensanomissa
Pikkukirkon historiaa
Elokuvateatterin historiaa
Hiukan kevyemmin!
TYÖKANSA 1918
Valokuvia TOY:n valokuva-arkistosta, 8 klp numeroituja albumeja
1. albumi (TES 9.)
2. albumi (TES 10.)
3. albumi (TES 11.)
4. albumi (TES 12.)
5. albumi (TES 13.)
6. albumi (TES 14.)
7. albumi (TES 15)
8. albumi (TES 16)
Valokuvia TOY:n valokuva-arkistosta, 8 klp numeroimatonta albumi
1. albumi (TES 1.)
2. albumi (TES 2.)
3. albumi (TES 3.)
4. albumi (TES 4.)
5. albumi (TES 5.)
6. albumi (TES 6.)
7. albumi (TES7.)
8. albumi (TES 8.)
Valokuvia Tapio Sillantien arkistosta
1. albumi, TS1.
Saara Sillantien luokkakuvia SS1.
Sekalaisia kuvia
Marjamäen Hannulta
Lehdon Pertin taidenäyttely
Tällä sivustolla käytetään evästeitä.
Lue lisää evästeistä.
Valitse käytettävät evästeet
Välttämättömät
Tilastointi
Markkinointi
Salli vain valitut
Salli kaikki